HouseDrive

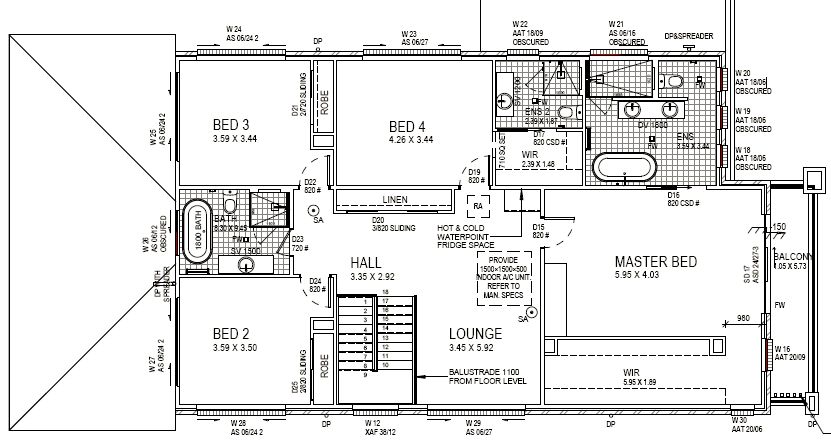
PROJECT DESCRIPTION

391m2 double storey house in 435m2 block.

Features

  • 391m2 Area
  • 5 bedrooms
  • 2 Garage
  • 5 Shower



Floor Plan



Get in Touch With Us

If you have any further questions or queries please do not hesitate to get in touch.

Address

43 Kelly St, Austral

Phone Number

+0470335872