Brush Cherry

PROJECT DESCRIPTION

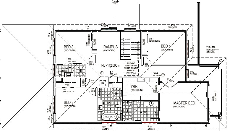
386m2 double sotrey house in a 450m2 block.

Features

  • 386m2 Area
  • 5 bedrooms
  • 2 Garage
  • 4 Shower



Floor Plan



Get in Touch With Us

If you have any further questions or queries please do not hesitate to get in touch.

Address

43 Kelly St, Austral

Phone Number

+0470335872